Designaciones de modelos
1. Nombre del código: Soporte para acumulador
2. Diámetro: Φ89~Φ299

Un soporte de acumulador es un dispositivo mecánico que se utiliza para fijar y soportar un acumulador hidráulico.

Funciones y características clave:
1. Soporte estable: Su función principal es fijar de forma segura el acumulador al bastidor o base del equipo, evitando desplazamientos por vibración o cambios de presión durante el funcionamiento.
2. Componentes estructurales: normalmente incluye una base (para la conexión al equipo), una estructura de sujeción vertical u horizontal (para soportar el cuerpo del acumulador) y dispositivos de fijación (como pernos y abrazaderas).
3. Amortiguación y sellado de vibraciones: algunos diseños de soportes están equipados con almohadillas de goma o resortes para reducir la transmisión de vibraciones o utilizan sellos a prueba de fugas.
Nota de pedido
1. Especifique el nombre completo del código del modelo al realizar el pedido, por ejemplo: Volumen nominal del acumulador 25L, Diámetro $299 soporte:
NX-TJ/$299 (junta de goma incluida)
2. Contáctenos si se necesita un requisito especial.
3. Nuestra empresa conserva los derechos de cambio de diseño y las revisiones entran en vigor sin previo aviso.
Podemos diseñar y desarrollar de acuerdo a las necesidades de nuestros clientes para satisfacer los requerimientos de diferentes clientes.
Designaciones de modelos
1. Nombre del código: Soporte para acumulador
2. Diámetro: Φ89~Φ299
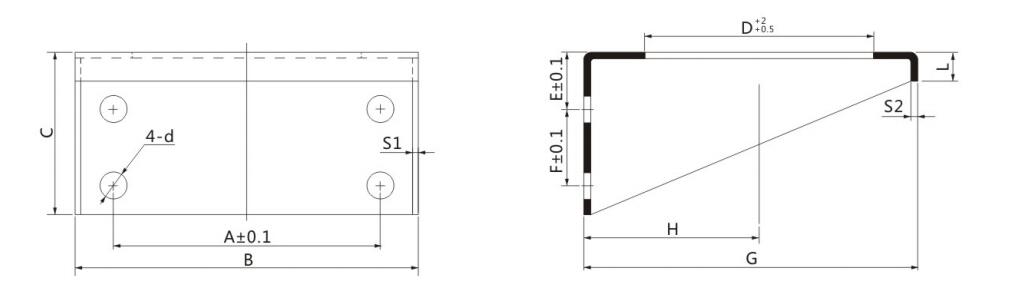
Dimensión general
| Modelo | A | B | C | D | E | F | G | S1 | S2 | d(±0,22) | L | H | Tipo de acumulador compuesto |
| NX-TJ/Φ152 | 140 | 180 | 85 | 120 | 30 | 40 | 175 | 2.5 | 3 | 14 | 15 | 90 | L1.6-L6.3 |
| NX-TJ/Φ219 | 180 | 250 | 95 | 170 | 35 | 45 | 250 | 2.5 | 3 | 14 | 15 | 130 | L10-L40 |
| NX-TJ/Φ299 | 260 | 330 | 220 | 212 | 65 | 120 | 330 | 3 | 4.5 | 22 | 25 | 165 | L20-L150 |
| NX-TJ/Φ229 | 200 | 260 | 100 | 170 | 35 | 40 | 225 | 2.5 | 3 | 14 | - | 122 | - |

| Modelo | A | B | C | D | E | F | Modelo de soporte a juego |
| NX-DQ/Φ152 | 140 | 120 | 88 | 115 | 10 | 18 | NX-TJ/Φ152 |
| NX-DQ/Φ219 | 195 | 170 | 158 | 170 | 15 | 25 | NX-TJ/Φ219 |
| NX-DQ/Φ299 | 250 | 210 | 195 | 210 | 20 | 30 | NX-TJ/Φ299 |
| NX-DQ/Φ229 | 200 | 169 | 159 | 170 | 15 | 20 | NX-TJ/Φ229 |